






























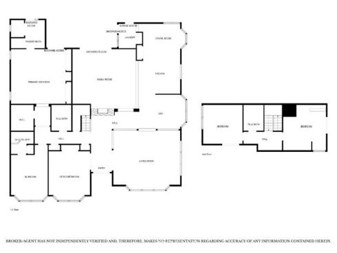
Welcome to 17525 Sunwest Circle, a Custom Estate Nestled on a Sought After Cul-De-Sac in the Heart of Yorba Linda. This Fully Remodeled Smart Home Lives as a Single Level Home with Five Bedrooms (Three Main Floor Bedrooms Including the Primary), Four Full Bathrooms, 100% Owned Solar, Extra Long Paver Driveway, Detached RV/Car Garage with Lift, and a Resort-Style Backyard. Upgrades Include Dual Pane Windows, Metal Roof, Built-In Speaker System, Custom Staircase, New Ducting, New Doors, Custom Closet Systems, Whole House Reverse Osmosis & Water Softener, and Much More! As You Enter the Home, You are Greeted by a Custom Stone Entry and an Expansive Living Room with an Abundance of Natural Light Overlooking the Front Yard. Enjoy a Gourmet Kitchen with Granite Counters, Island with Seating, Custom Cabinetry with Pull-Out Drawers, Stainless Steel Appliances, and Dining Area. The Bar Sits Adjacent to the Kitchen and Enjoys a Wood-Beamed Ceiling and Quartzite Counters. The Spacious Family Room Boasts a Wood-Beamed Ceiling, Built-Ins, Stone Fireplace, Backyard Access, and Opens Directly to the Kitchen. The Luxurious Master Suite Provides a Walk-In Closet with Built-Ins, Additional His/Hers Mirrored Closets, Wood-Beamed Ceiling, and Stacked Stone Accent Wall. The Spa-Like En-Suite Bath Has Dual Vanities, Makeup Vanity, Backyard Access, and Frameless Glass Walk-In Shower with Dual Heads. The Entertainer’s Backyard is a True Oasis, Featuring a PebbleTec Pool/Spa, Waterfall, Baja Shelf, Pavers, Two Mounted TV’s, Covered Patio with Heaters, Pergola, Turf, Built-In BBQ, Fruit Trees (Orange/Avocado), and Lush Landscaping Providing Maximum Privacy. The Direct Access Two Car Garage Includes Epoxy Floors, Sink, and Built-In Cabinets. The Additional 392 Sq. Ft. Detached RV/Car Garage (14 x 28) Features a 14 Ft. Door Height, Custom 12 Ft. Car Lift, Epoxy Floors, and Built-In Storage System. The Indoor Laundry Room Includes Built-In Cabinets and Offers Convenient Access to both the Garage and the Backyard. Located Within Walking Distance to Veterans Park, Yorba Linda Adventure Playground, and Short Drive to Multiple Shopping Centers, Restaurants, and Entertainment. Easy Access to the Toll Roads, Freeways, and Carbon Canyon Walking/Hiking Trails. 17525 Sunwest Circle is a Must See!