





















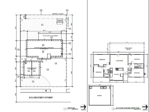
Total of 8 bedrooms, 5 bathrooms, approximately 2,877 square feet of total living space across 3 units on a 7200 sq. ft lot! Main house (3 Bed | 2 Bath | 1177 living sqft), 2024 remodeled JR ADU unit (2 Bed | 1 Bath | 500 living sqft) and 2025 constructed detached ADU (3 Bed | 2 Bath | 1200 living sqft) Calling all investors, 1031 exchange buyers, or homeowners looking to generate solid rental income! This remarkable property features three distinctive units nestled on a spacious lot, perfect for a variety of living arrangements. The main house is a charming, single-level residence that has been thoughtfully remodeled to include 3 inviting bedrooms and 2 bathrooms. This home offers a warm and comfortable ambiance, ideal for family gatherings. Completing the lot is a splendid Accessory Dwelling Unit (ADU), which was finished at the end of 2024. Spanning an impressive 1,200 sq. ft. This contemporary unit boasts 3 well-proportioned bedrooms and 2 stylish bathrooms. The heart of the ADU is its fully upgraded modern kitchen, featuring elegant quartz countertops and crisp white shaker cabinets, ensuring both beauty and functionality. With upgraded bathrooms and a mini-split A/C and heating unit, this living space offers year-round comfort. Additionally, the Junior Accessory Dwelling Unit (JADU), completed in 2025, features 2 cozy bedrooms, 1 bathroom, and a practical kitchen, along with a convenient laundry area equipped with a stackable washer and dryer space. This charming JADU operates entirely on solar energy, reflecting a commitment to sustainability. Every unit in this property includes an indoor laundry area for added convenience. The expansive lot, exceeding 7,200 sq. ft., not only allows for versatile living options but also provides ample outdoor space for gardens and recreational activities. This property is ideally suited for multi-generational living or as a rental income opportunity. Situated in a prime location, residents enjoy easy access to Lions High School, the bustling shopping areas, beautiful beaches, and major thoroughfares such as the 405 and 22 freeways, making every day commuting a breeze. This property truly embodies a unique blend of opportunity and versatile living options!