





















































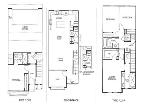
Modern Village Townhome in a single family residential neighborhood in the Heart of Old Town Tustin – 4 Bed | 3.5 Bath | Dual Primary Suites Welcome to “Vintage at Old Town’ Tustin, where modern design meets walkable charm. This spacious townhouse is a rare blend of comfort, functionality, and premium finishes in a prime location just steps from Old Town Tustin’s popular restaurants, cafes, and bars. Designed for flexibility and flow, the open-concept floor plan features a gourmet kitchen with large island, quartz countertops, and a butler’s pantry, perfect for everyday living and entertaining. Enjoy the outdoors from your private balcony, resort style community pool or relax indoors with a built-in sound system and pendant lighting in great room. Two primary suites with en suite bathrooms—on the first and third floor - make this home ideal for multi-generational living or guest accommodations. Additional highlights include a dedicated workspace with a beverage fridge, kitchen refrigerator, stackable washer/gas dryer, Cordless Zebra shades, ceiling fans, attached oversized two-car garage, guests & street parking, lush landscaping, small dog park, and Energy Star certification for energy efficiency. Located just minutes from major freeways, commuting is a breeze—yet you’re only a short stroll from the heart of historic Old Town.