










































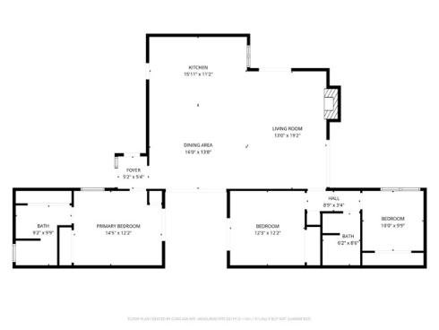
Remodeled 3-Bedroom Home in Tustin Discover this beautifully updated 3-bed, 2-bath home in the desirable city of Tustin. Featuring 1,398 sq. ft. of open-concept living on a spacious 7,800 sq. ft. lot, this home offers a fresh, modern feel throughout. Recent upgrades include a brand-new kitchen with new appliances, updated lighting, new flooring, refreshed tile, and newly painted interior and exterior. Both bathrooms feature updated showers, and the home includes an atrium cover and newly planted landscaping. Energy-efficient perks include paid-off solar panels and EV chargers in the garage, a rare find in this area. Move-in ready and beautifully remodeled, this Tustin gem is one you won’t want to miss.