












































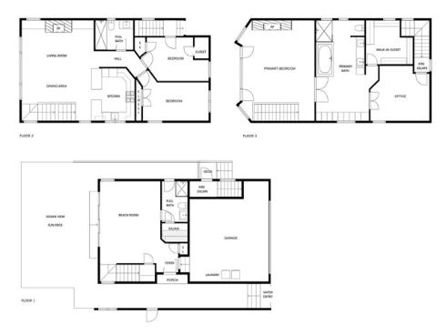
This is a fantastic New Listing on the Sand in the Sunset Beach area of Huntington Beach! Where is Sunset Beach? It is a quaint & sleepy area of Huntington Beach located just south of Surfside Colony and North of Bolsa Chica State Beach. Due to Limited public parking, the soft sands & surfable waves of Sunset Beach are refreshingly less crowded than other Southern California beaches. Those who appreciate privacy are drawn to this remarkable stretch of Orange County coastline. This beautifully remodeled 3 Story home was constructed in 1992, has 30 feet of frontage on the sand, and approximately 2,817 square feet of living area. The Primary Bedroom is on the 3rd floor and has a sweeping whitewater, sunset, and Catalina view. It also has an ocean view office, walk-in closet, and primary bathroom designed to pamper… I am certain you will enjoy the luxurious soaking tub, sun-splashed shower, double sinks, and enclosed water closet. The 2nd floor has two additional guest bedrooms with a shared hall bathroom. The gourmet kitchen is also on the 2nd floor and it is open to the family room and dining area. While cooking a meal in the kitchen of this home, it is possible to watch the sun set over the ocean, see dolphins swimming in the surf, or a kite surfer fly 25 feet into the air. The first floor Beach Room is a great place to hang out. Wine lovers will appreciate the built-in wine cellar, and everyone will want to spend time on the large sun deck on the sand. There is an abundance of space to lounge, sunbath, barbecue, and casually dine with all of your friends and family. And, when you come back home after a long surf session, the bottom floor has a full bath to shower off and a dry sauna to quickly warm you up. Finally, this home offers the convenience of an attached 2 car garage with direct access into the home… plus additional parking for one car in the driveway. The kids in the family will love that there is a greenbelt and playground just a few steps away. If you are looking for a move-in ready detached house on the sand with all the features anyone could desire in a beach home, this is quite possibly the one. Take a look at the photos and 3D tour!