


















































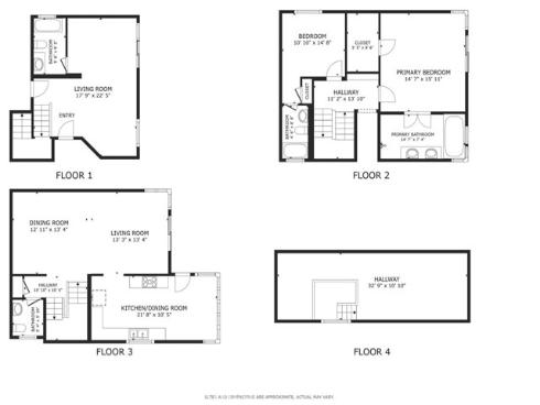
Luxury Waterfront Townhouse on Sunset Island – Prime Location with Private Boat Dock Discover this stunning 3.5-level modern townhouse on Sunset Island in Huntington Harbour, offering a private 30 foot boat dock—perfect for boating enthusiasts. Ideally located within walking distance to Sunset Beach and the renowned Captain Jack’s restaurant, this home is an exceptional opportunity for small families, investors, or vacation homeowners. Designed for seamless indoor-outdoor living, the home features an open-concept living area with soaring ceilings and abundant natural light from expansive windows. A large sliding glass door opens onto a spacious enclosed patio, ideal for entertaining, barbecuing, and enjoying breathtaking sunsets. The elevated loft space overlooks the living area and offers stunning ocean views of Palos Verdes and Catalina Island. The primary suite boasts a private balcony, a spa-like ensuite bathroom with a soaking Jacuzzi tub, dual sinks, and an enclosed shower. A second bedroom includes its own private bathroom. The home is elegantly appointed with maple hardwood flooring throughout and new carpeting in the bedrooms. On the first level, a versatile bonus room opens onto a large waterfront deck with direct access to the boat dock—currently used as a man cave, this space could easily be converted into a guest suite or additional bedroom.The deck is perfect for relaxing and enjoying potted plants or waterfront views. Additional features include: Gourmet kitchen with maple cabinetry and black granite countertops. Sunroom, ideal for casual dining. New motorized/remote control window shades. Direct access to two-car tandem garage, now upgraded with a new WiFi-enabled opener, with an electric vehicle charger and laundry area. This rare waterfront gem offers private access for boating, paddleboarding, and kayaking, making it the ultimate coastal retreat. Don't miss this opportunity to own a piece of paradise on Sunset Island! Walking distance to the Sunset Beach.