
























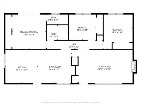
Beautiful Remodeled Home with large, open Living Spaces. This house features a large living room, beautifully remodeled kitchen, newly installed flooring throughout, an extra large driveway, fruit trees, remodeled bathrooms and sits at a great location, near shopping, freeways and more!