



























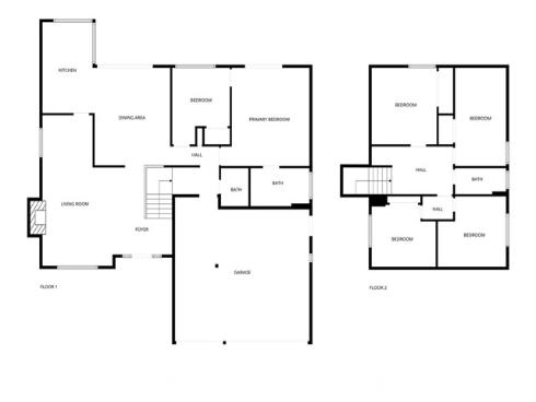
Welcome to your dream home! This perfectly situated property is nestled in the well-established South Coast Metro/Sandpointe neighborhood, just minutes from the famous South Coast Plaza. Downstairs, you will find a living room with a fireplace, a formal dining room, a remodeled and updated kitchen, a family room, and a master bedroom with an attached bathroom, along with a den or an additional bedroom. Upstairs, there are three bedrooms plus a bonus room, allowing for the possibility of five bedrooms! The home features beautiful front yard landscaping, an oversized 3-car attached garage, and additional driveway space for your convenience. Located just minutes from the 405 Freeway and South Coast Plaza, you'll have easy access to shopping, dining, and entertainment. Don't miss out on this move-in-ready gem—it's waiting for you to call it home!