






















































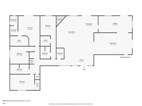
Welcome to 28536 Paseo Diana, a beautifully updated single-level custom home located in the exclusive, gated enclave of Tierra del Caballo—a private community of just 12 residences. This rare offering features 4 bedrooms, 3 full bathrooms (including 2 en-suites), and a guest powder room, all designed with comfort, functionality, and style in mind. Step inside to an expansive open-concept living area with high ceilings and abundant natural light. The spacious floor plan is perfect for both entertaining and everyday living, seamlessly connecting the formal and informal spaces. At the heart of the home is the chef’s kitchen, equipped with high-end appliances, ample cabinetry, and generous prep space. It opens to a large living and dining area that effortlessly supports indoor-outdoor flow. The bedroom layout offers privacy and versatility, with two en-suite bedrooms ideal for guests or multigenerational living. The primary suite is a private retreat with a luxurious bath and abundant storage. Set on a large, private lot, the backyard offers endless potential—whether for a spa, garden, or custom outdoor entertaining space in addition to access to community pool, tennis court, and equestrian trails. Located just minutes from the Mission Trails equestrian center, scenic trails to Doheny Beach and Dana Point Harbor, and the historic downtown San Juan Capistrano, this home combines comfort, privacy, and an unbeatable lifestyle. A rare opportunity to own in one of South Orange County’s most private and desirable communities.