




































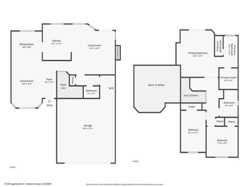
TURNKEY | MOUNTAIN VIEWS | CUL-DE-SAC | LOW HOA | LOW TAXES | Welcome to your dream home in the heart of the coveted Robinson Ranch neighborhood. This beautifully upgraded residence truly has it all, offering style, comfort, and functionality for the modern lifestyle. As you step through the front door, you are immediately welcomed by an abundance of natural light, soaring ceilings, and luxury plank flooring that flows seamlessly throughout the entire home. The formal living rooms opens seamlessly to the formal dining room for elegant dinners. The Chef’s Kitchen is an entertainer’s delight with sleek granite countertops, stainless steel appliances including a 5-burner gas range, under-cabinet lighting, reverse osmosis system, and a cozy breakfast nook ideal for casual meals with family and friends. Designed with comfort in mind, the open-concept family room features a beautiful fireplace and a sliding glass door that opens to the backyard—creating the perfect indoor-outdoor flow for entertaining. Upstairs, the spacious Primary Suite is a private retreat, complete with its own slider to an oversized balcony—ideal for enjoying your morning coffee looking over the panoramic mountain views or star gazing at night. The spa-inspired Primary Ensuite bathroom showcases an upgraded dual vanity with granite counters, new mirrors and upgraded lighting, luxurious walk-in shower with custom tile, frameless shower door, rain head shower, privacy door as well as a generous walk-in closet with built-in shelving. Two additional bedrooms offer ample space for guests or family members, while the second full bathroom is thoughtfully updated with a modern vanity, custom tilework, and a full bath/shower. A cozy mini loft upstairs provides a versatile space for a home office or reading nook and a wine fridge! Bathroom 3 is downstairs. Step into your backyard oasis with wonderful privacy featuring a patio deck perfect for summer relaxation and entertaining, covered patio for shady warm-summer days, raised garden planter, and no maintenance artificial turf. ENERGY EFFICIENCY: Dual-pane windows, recessed LED lighting, ceiling fans, whole house fan, tankless water heater, sprinkler timer. This SMART home includes Ring doorbell, Ecobee thermostat, smart garage door and more! AMENITIES: Pool, spa, playground, sports courts. LOCATION: Hiking trails, schools, parks, shopping, restaurants, and 241 Expressway/5 Freeway for quick commutes. Make this exceptional property your new home!