714-914-4996

14 Dover ,
Rancho Santa Margarita, CA 92679

$2,187,000

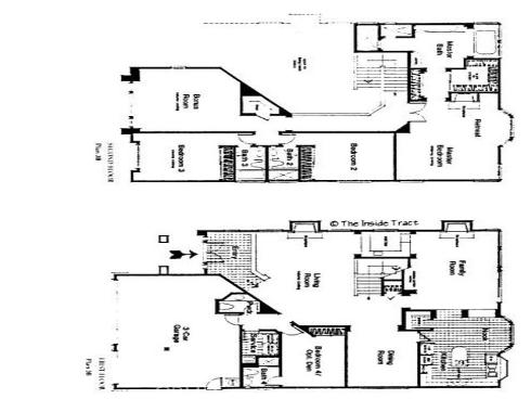
A Dove Canyon home that represents a true entertainer’s dream. This private, 3,643-square-foot home features four bedrooms and five bathrooms on a large lot offering breathtaking 270-degree panoramic views. The interior is highlighted by a spacious living room with soaring ceilings, custom stonework, a dramatic fireplace, and hardwood flooring throughout. A full wall of windows overlooks the Dove Canyon Clubhouse and the Cleveland National Forest. The home also features a spacious family room with quality built-ins and a renovated kitchen equipped with an expansive wood-topped island, leathered granite countertops, and newer appliances, including a double oven. A conveniently located wet bar sits between the family and living rooms, allowing for a seamless flow into the backyard, which is complete with an outdoor kitchen, bar, and viewing deck. All bedrooms include en-suite bathrooms, including a large primary suite with vaulted ceilings, two large closets, and an attached balcony with expansive views. Additionally, the property includes a spacious upstairs bonus room that can easily be converted into a fifth bedroom or office. The backyard is perfectly situated behind the 16th tee of the signature Jack Nicklaus golf course, providing one of the best views on the course without the risk of errant golf balls. With close proximity to the toll road, shopping, restaurants, and trails, combined with low taxes and HOA fees, this property is a must-see.

Basic Information

MLS #:
OC26034565

Price:
$2,187,000

Price
(per sq ft):
$600.00

Address:
14 Dover ,
Rancho Santa Margarita, CA 92679

MLS Area:
DC - Dove Canyon

Subdivision:
Westcliff (DWC)

Property
Type:
Single Family Residence

Days on Market:
0

Status:
Active

Bedrooms:
4

Bathrooms:
5

Full Baths:
4

Size (sq ft):
3,643 sq ft

Lot Size:
6,050 sq ft

Year Built:
1992

Sale Type:
Standard

Rooms in Home

Rooms:
Bonus Room, Laundry, Main Floor Bedroom, Walk-In Closet, Walk-In Pantry

Eating Area:

Laundry:
Gas Dryer Hookup, Individual Room, Inside, Washer Hookup

Entry Location:
Living room

Interior Features

Fireplace:
Family Room, Living Room, Primary Bedroom

Cooling:
Central Air, Zoned

Heating:
Forced Air

Floor:

Appliances:
Dishwasher, Double Oven, Disposal, Gas Cooktop, Hot Water Circulator, Microwave

Interior Features:
Balcony, Bar, Built-in Features, Ceiling Fan(s), Pantry, Wet Bar

Security:

Accessibility:

Garage and Parking

Garage:
Attached

Garage:
3 Spaces

Carport:
0 Spaces

Parking:

Home Owners Association

HOA Dues 1:
$320.00 / Monthly

HOA Dues 2:
$

HOA Amenities: 
Pickleball, Pool, Spa/Hot Tub, Playground, Tennis Court(s), Maintenance Grounds, Guard

Utilities

Water:
Public

Utilities:

School Information

District:
Capistrano Unified

Elementary:
TIJCRE

Middle:
LASFLO

High:
TESERO

Exterior Features

Pool:
Community

Spa:
Association

Patio:

View:
Canyon, Golf Course, Hills, Mountain(s)

Construction:

Foundation:

Roof:

Windows:

Common Walls:
No Common Walls

Levels:
Two

Lot Features:
Front Yard, Garden, On Golf Course, Sprinkler System

Additional Information

County:
Orange

Senior Community:
No

Community Features:
Biking, Curbs, Golf, Hiking, Gutters, Mountainous, Street Lights

Other Structures:

Structure Condition:

Direction Faces:

Listed by:
Pacific Coast Real Estate Group , Tina Twite-Chin , 01427355

Co-Listed:

Last
Updated:
2/19/2026 4:00 PM

14 Dover ,
Rancho Santa Margarita, CA 92679