



















































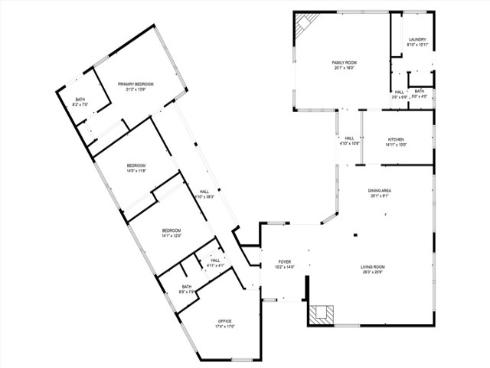
Welcome to 994 N Cleveland Street, an architect-designed, custom-built single-story ranch residence where timeless design meets comfort and sophistication. Originally crafted in 1960 by a distinguished local architect, this 3-bedroom, 2.5-bathroom estate offers approximately 2,916 square feet of living space on a rare, oversized 17,064 square foot end-of-cul-de-sac lot—one of the most sought-after settings in Orange. The home’s thoughtful layout balances elegance and livability. A formal living room with fireplace and a refined dining room set the stage for gatherings, while the spacious family room also with a fireplace and updated kitchen provide a welcoming hub for everyday life. A large dedicated office allows flexibility as a potential fourth bedroom. Designed to embrace Southern California’s indoor-outdoor lifestyle, the residence partially wraps around a private backyard retreat, complete with a sparkling pool, mature fruit trees, and lush greenery—ideal for hosting or simply unwinding in tranquility. Additional highlights include a detached rear-facing two-car garage, an expansive driveway with RV/guest parking, and generous grounds offering space for gardening, play, or future expansion. The property has a large utility/Laundry room. The Neighborhood Situated in one of Orange’s most desirable enclaves, this property enjoys both privacy and convenience. Just moments away lies the charm of Old Towne Orange, renowned for its historic plaza, antique shops, and award-winning dining. The home is also close to Chapman University, top-rated schools, and cultural destinations like the Hilbert Museum of California Art. For leisure, nearby Peters Canyon Regional Park and Santiago Oaks Regional Park offer miles of trails, while Disneyland Resort, Angel Stadium, and Honda Center provide world-class entertainment within minutes. Easy freeway access ensures a seamless connection to the beaches of Newport, Huntington, and Laguna, as well as the greater Southern California region.