




















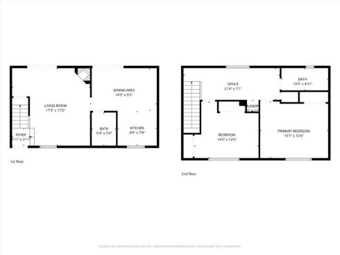
Welcome to this spacious 2-bedroom condo just one mile from the charming district of Old Towne Orange! Offering over 1,200 square feet, this thoughtfully designed home feels open and inviting from the moment you step inside. Abundant windows fill the expansive living room, kitchen, and dining area with natural light, creating a bright and airy atmosphere throughout. Upstairs, you’ll find a generous loft—perfect for a home office, hobby room, or cozy library. The home also features high quality tile flooring downstairs, tastefully renovated bathrooms, and a stackable washer and dryer upstairs. Additional highlights include central heat/air with a Honeywell thermostat, a large patio, private garage, an extra assigned parking space, and a quiet, well-maintained 12-unit community. With its ideal location being conveniently located near Chapman University, major freeways, shopping, and schools, this is a perfect place to call home!