




















































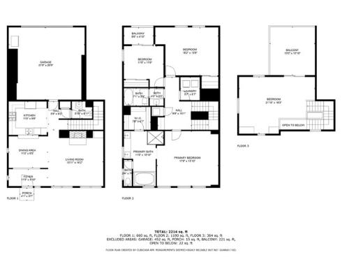
Welcome to The Depot Walk! This vibrant community offers LEED-certified, energy-efficient homes complete with paid-for solar electricity and a tankless water heater. Perfectly located just steps from the historic train depot, the Old Towne Plaza, and more than 40 restaurants, this home combines modern living with historic charm. This is the largest model—a rare end unit with over 2,000 sq. ft. of living space, an upstairs loft, and a highly sought-after rooftop patio with sweeping views of Chapman University and the city. The three-story layout features 3 bedrooms, 3 full baths, and a versatile upstairs great room with fireplace and direct access to the rooftop patio. Inside, you’ll find rich espresso wood floors, a stylish stainless steel kitchen with dining island, and a bright living room with numerous windows and a cozy gas fireplace. The primary suite offers an en suite bath with soaking tub, glass-enclosed shower, and a generous walk-in closet. Additional highlights include: 2-car attached garage with direct access. Tankless water heater & water softener. Brand-new carpet. Washer, dryer, and refrigerator included. This home’s rare rooftop patio and spacious floor plan make it the most desirable model in the community. Don’t miss this opportunity to live just steps from Chapman University and all that Old Towne has to offer! Priced to sell quick.