



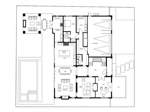
RARE RTI OPPORTUNITY IN PRESTIGIOUS DOVER SHORES Attention developers, investors, or owner-users looking to build the ultimate dream home in the highly coveted Dover Shores community. This exceptional project comes with fully approved architectural plans for a stunning two-story home featuring 5,660 sq. ft., 5 bedrooms, office, study room, secondary living room, and 5.5 baths. The thoughtfully designed main level includes a service kitchen with an oversized island and bar seating, flowing seamlessly into an expansive living area. Floor-to-ceiling glass doors open to the front patio, creating an ideal indoor/outdoor living experience. The dramatic great room impresses with its soaring ceilings and statement fireplace. Upstairs, the private primary suite offers a true retreat complete with a sauna, soaking tub, walk-in shower, dual vanities, spacious walk-in closet, and a private balcony. Three additional en-suite bedrooms complete the second level. Additional features include a pool and an oversized 3-car garage with EV-charging capability. Permits and plans are expected to be delivered in January 2026 at the close of escrow. An exceptional chance to customize and build your dream home in one of Southern California’s most desirable coastal neighborhoods. Price includes the existing house and approved plans only. Construction costs are not included.