




























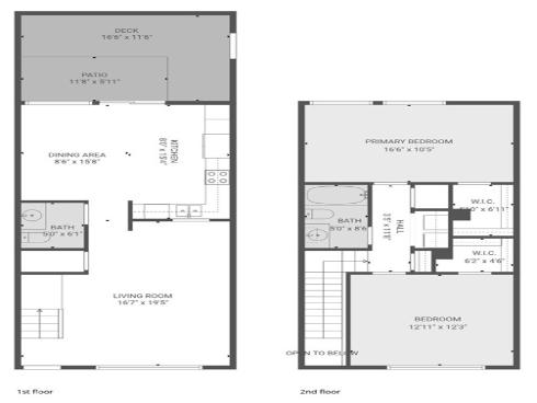
Welcome to Cedar Glen—your move-in-ready home in one of the area’s most convenient and desirable communities. This beautifully updated unit features two spacious bedrooms, one full bath, and an upstairs laundry area with a washer and dryer included. The main level offers an open-concept living space that flows seamlessly into a bright, refreshed kitchen and out to a private entertainer’s patio. Perfectly positioned on the outskirts of the community, this home provides easy access to parking and sits just steps from the Aliso Creek Trail, ideal for morning walks or weekend bike rides. Cedar Glen offers a sparkling pool, clubhouse, and well-maintained grounds. HOA dues include water, trash, basic cable, pool access, and exterior maintenance for added peace of mind. Fresh paint, new carpet, and a dedicated carport with extra storage make this home truly turnkey. Enjoy being moments from shopping, dining, freeways, and everyday conveniences—this is the one you’ve been waiting for.