









































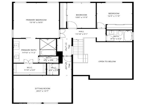
Welcome to this stunning, fully permitted, turnkey remodel offering 4 bedrooms, 3 bathrooms, and 2,722 sq. ft. of thoughtfully designed living space, ideally situated on a quiet cul-de-sac. Every detail and designer finish has been carefully curated to create a move-in-ready home that blends modern luxury with everyday functionality. The exterior boasts refreshed landscaping, a new irrigation system, elegant exterior lighting, and a beautifully crafted backyard pergola—perfect for outdoor entertaining or relaxing evenings at home. Inside, you’ll find brand-new windows throughout and a highly desirable first-floor bedroom and full bath—ideal for guests or multigenerational living. The formal living and dining room welcomes you with a cozy fireplace and an inviting atmosphere for gatherings. The heart of the home is the open-concept family room and completely reimagined kitchen. Designed for both entertaining and daily living, the kitchen features a dramatic 9-foot island, eat-in dining area, new energy efficient appliances which include a 42 bottle, dual zone wine and beverage cooler, 6-burner gas range, Fantasy Gold quartz countertops, and a spacious walk-in pantry. Upstairs, retreat to the luxurious primary suite showcasing a spa-inspired bathroom with double vanities, a generous walk-in closet, and a stunning wet room complete with a soaking tub and oversized shower. Two additional bedrooms, a full bath, and a versatile bonus room or optional fifth bedroom with walk-in closet complete the upper level. Included in your HOA membership is the Sun and Sail Club. Amenities include Tennis, Pickleball, Sport courts, Pools, Hot tub, Sauna, Fitness center, BBQ area and clubhouse. The association also sponsors social events throughout the year for members. This exceptional home offers the perfect combination of modern upgrades, flexible living space, and timeless design.