

















































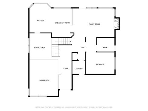
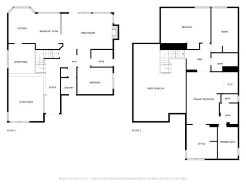
BEST VALUE in one of Laguna Hills’ Best Neighborhoods! Located in the highly desirable Aliso Place community, on the beach side of the 5 freeway and just steps from El Conejo Park, this 4-bedroom, 3-bathroom home offers incredible value and room to grow. With a great layout, a main-floor bedroom and full bath, and spacious living areas filled with natural light, this home is ready to become your forever home. Enjoy fresh paint throughout and new carpet upstairs, with the original kitchen and bathrooms giving you a chance to add your personal touch over time. The family room opens to a private and generous size backyard with a pool, spa, built-in BBQ, and plenty of space to relax or entertain. Upstairs, the large primary suite includes a bonus retreat area (perfect for an office or reading nook-permitted), an en-suite bath with separate shower, and a walk-in closet located in the bedroom. Additional highlights include No HOA, excellent corner-lot location within neighborhood, a 2-car garage, solar panels, water filtration system, and mature landscaping with beautiful fruit trees. This is a rare opportunity to live in a quiet, established neighborhood with no HOA, just minutes from top-rated schools, parks, shopping, dining, and the beach. Don't miss your chance to make this special home your own!