

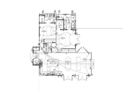
Exceptional investment & lifestyle opportunity in the heart of Laguna Beach. This shovel-ready project is a rare chance to build immediate equity in one of California’s most sought-after coastal communities. Skip the 2 year design review process and start renovations immediately. Plans have been approved and building permits issued to transform a charming single-story cottage into a modern coastal masterpiece. Situated on a desirable corner lot, the new design features vaulted ceilings throughout with an open-concept great room perfect for entertaining. Four sets of french doors bring in abundant natural light and provide easy access to enjoy the wraparound outdoor space. Both bedrooms are ensuite with dual vanities, and the primary suite offers a floating tub, walk-in closet, and direct patio access. Opportunity for significant equity upside as the after repair value appraised for $3,200,000 in March '25. Rare LBP zoning allows for flexible use as a short term rental and other residential/commerical uses. Prime location just 2 blocks from the beach and the vibrant heart of downtown Laguna. With a 96 walkscore, the property is surrounded by all the top restaurants, galleries, and shops. Whether you're looking to flip, hold as an income property, or create your dream beach home—this is an unparalleled opportunity to build immediate equity and enjoy the best of Laguna Beach.