









































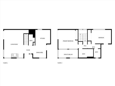
An Exquisite Modern Retreat in Coveted Arch Beach Heights Welcome to one of Laguna Beach’s most captivating offerings—an elevated modern sanctuary in the prestigious Arch Beach Heights community. Rarely does a property of this caliber come to market, making this a true hot buy you won’t want to miss. With over 1,280 square feet of refined living space, this beautifully upgraded 2-bedroom, 2.5-bathroom residence is a showcase of thoughtful design, luxurious comfort, and contemporary elegance. Step through the charming Dutch door entry and into a world of architectural sophistication and serene privacy. The open-concept floor plan is drenched in natural light, thanks to dramatic floor-to-ceiling windows that frame breathtaking hillside and ocean horizon views. Rich wood-style flooring, oversized baseboards, and designer lighting add warmth and texture throughout, while every detail has been curated to impress. At the heart of the home, the chef’s kitchen is both stunning and functional—featuring sleek stainless-steel appliances, custom natural wood cabinetry, striking white stone countertops, and a crisp white tile backsplash. Whether entertaining or enjoying a quiet evening in, this space offers the perfect balance of modern style and comfort. A cozy fireplace anchors the living area with understated luxury, while the tranquil primary suite offers a spa-like retreat complete with a walk-in shower enclosed in floor-to-ceiling marble-style tile, a warm-toned vanity, and brushed gold finishes that exude quiet elegance. The second primary suite continues the theme of upscale sophistication, offering its own beautifully appointed ensuite and elevated design finishes. Additional features include: Dual-pane windows All-new central air conditioning and HVAC system Lushly landscaped backyard oasis, Expansive two-car garage with direct access Perfectly positioned just minutes from world-class beaches, hiking trails, boutique shopping, and acclaimed dining, this home is not just a residence—it’s a lifestyle. Opportunities like this are rare. Discover the pinnacle of modern coastal living in one of Laguna Beach’s most sought-after neighborhoods. Don’t wait—this is the one.