











































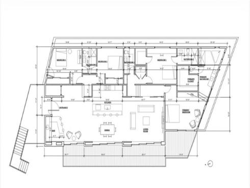
New construction, single-story residence with full ocean views, located in the renowned Temple Hills area of Laguna Beach, just minutes from Top of the World hiking trails, tennis courts, and a short drive to downtown Laguna Beach. This exceptional home offers the best of both worlds—panoramic ocean views paired with serene green mountain surroundings. A rare opportunity in Laguna Beach, the property features a spacious driveway with parking for up to five vehicles and two separate driveway exits, an uncommon and highly desirable feature. The home has been completely rebuilt, with everything brand new, and only two small original walls retained. The total new square footage is approximately 3,235 square feet, which includes a ~550 square foot ADU with a separate entrance, ideal for guests, extended family, or additional income. rendering show roof deck but there is no roof deck Currently under construction, the residence will be delivered fully finished, giving the buyer time to customize interior colors and select finishes prior to completion. The interior is professionally designed by renowned designer Adam Sokol and features top-of-the-line finishes throughout, including premium Thermador appliances. A rare blend of new construction quality, flexibility, ocean views, and prime Laguna Beach location. main house is 4 bed 4 bath plus adu one bad one bath ,more pictures of construction are available everything is new from sewer line to plumbing,electricaland .... buyer needs to do their own investigation regarding everything