





























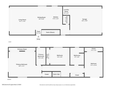
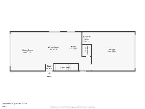
Discover this beautifully renovated home with breathtaking ocean and Catalina Island views, nestled next to some of Laguna Beach's finest nature trails and parks. This tastefully designed 3-bedroom, 2.5-bath residence is ready for new memories in the vibrant community of Laguna Beach. Remodeled in 2021, the home features high-end finishes, including 12 ft. accordion doors that showcase the panoramic views, new kitchen cabinets with Carrara quartz countertops, a Viking refrigerator, a wine chiller, a microwave drawer, and fully updated bathrooms. The custom California Closets, new flooring and fresh interior and exterior paint add to its charm. Offering exceptional privacy with no neighbors behind, the home provides tranquil vistas down the canyon to the ocean. Visit this special home before it's gone.