



















































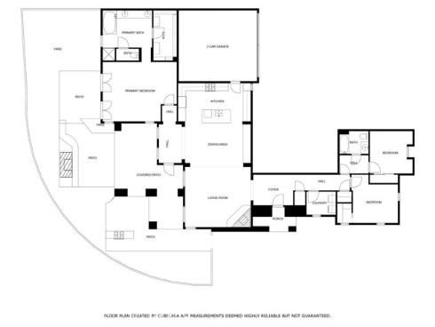
Don’t miss out on this incredible opportunity to get all the benefits of living in prestigious Covenant Hills at an unbeatable price for this stunning single level 3BR/2BA, 2,149 sq ft condo. The 24/7 gate-guarded community of Covenant Hills offers both security and serenity. Inside, enjoy stone tile flooring with high ceilings throughout, and a light-filled great room with a custom stone fireplace. The gourmet kitchen is a chef’s dream—granite island, 6-burner cooktop, French door refrigerator with craft ice, built-in convection oven, and stylish cabinetry. The luxe primary suite boasts a spa-style bath with soaking tub, dual sinks, private toilet room, and an enormous walk-in closet with built-ins. Step outside to your covered loggia to take in sweeping canyon and sunset views. Tuscany’s private amenities include a spacious entertainer's yard, outdoor fireplace, built in BBQ, lush landscaping, and tranquil fountain. Enjoy full access to Ladera Ranch’s famed pools, water parks, sports fields, and year-round events. Convenient guest parking and a scenic overlook bench are just steps from your front door. This is one of the most affordable opportunities to own in Covenant Hills made even better with the limited-time price reduction - don't miss your chance to call this exceptional residence Home!