714-914-4996

1232 Devonshire Lane,
La Habra, CA 90631

$635,000

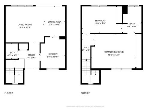
Now's your chance to live in the highly sought after Sunny Hills Village right here in the city of La Habra. As you enter the home you'll notice the natural light coming through the big living room windows and sliding glass door that leads to a private patio. Featuring beautiful walnut wood floors, this cozy living room is perfect for watching your favorite TV shows, reading, or just relaxing at home. You'll enjoy cooking in this updated functional kitchen. There is lots of counter space and more natural light coming from the over-the-sink-window that faces East. The kitchen features a brand new dishwasher, granite counters, shaker style cabinets, farmhouse sink, and lots of storage. Upstairs has a large primary bedroom with double door entry, full length mirrored closet, and direct access to the bathroom. This bathroom has lots of storage and can be accessed from both bedrooms. The second bedroom has a large window that faces West, an oversized closet that can hold all your clothes/accessories, and the same beautiful walnut wood floors that the living room has. Your private patio is perfect for BBQ, spending time with loved ones, gardening, or just relaxing after a long day of work. With direct access from the garage into both the home and patio, this property creates a smooth indoor-outdoor connection. Once you pull in and close the new garage door, the entire space is yours to enjoy in comfort and privacy. The laundry hook ups are located in the garage with lots of storage. This community has so much to offer with a pool, playground, sport court and more. Don't miss out on an opportunity to live in this wonderful neighborhood.

Basic Information

MLS #:
PW25254228

Price:
$635,000

Price
(per sq ft):
$586.00

Address:
1232 Devonshire Lane ,
La Habra, CA 90631

MLS Area:
87 - La Habra

Subdivision:
Sunny Hills Village (SUNH)

Property
Type:
Single Family Residence

Days on Market:
29

Status:
Active Under Contract

Bedrooms:
2

Bathrooms:
2

Full Baths:
1

Size (sq ft):
1,082 sq ft

Lot Size:
1,700 sq ft

Year Built:
1976

Sale Type:
Standard

Rooms in Home

Rooms:
All Bedrooms Up, Kitchen, Living Room

Eating Area:
Dining Room

Laundry:
Dryer Included, Gas Dryer Hookup, In Garage, Washer Hookup, Washer Included

Entry Location:
Ground level with steps

Interior Features

Fireplace:
None

Cooling:
Central Air

Heating:
Forced Air

Floor:
Carpet, Tile, Wood

Appliances:
Dishwasher, Electric Oven, Electric Cooktop, Disposal, Microwave, Refrigerator, Tankless Water Heater, Vented Exhaust Fan

Interior Features:
Ceiling Fan(s), Pantry, Recessed Lighting

Security:
Carbon Monoxide Detector(s), Smoke Detector(s)

Accessibility:

Garage and Parking

Garage:
Attached

Garage:
2 Spaces

Carport:
0 Spaces

Parking:
Garage, Garage Faces Rear, Garage - Single Door, Garage Door Opener

Home Owners Association

HOA Dues 1:
$309.00 / Monthly

HOA Dues 2:
$

HOA Amenities: 
Pool, Playground, Sport Court, Pest Control, Maintenance Grounds, Trash, Water, Security, Maintenance Front Yard

Utilities

Water:
Public

Utilities:
Electricity Connected,Natural Gas Connected,Water Connected

School Information

District:
Fullerton Joint Union High

Elementary:

Middle:
IMPERI

High:
SONORA

Exterior Features

Pool:
Community, Fenced, In Ground

Spa:
None

Patio:
Slab

View:
None

Construction:
Stucco, Wood Siding

Foundation:
Slab

Roof:
Composition

Windows:
Double Pane Windows, Screens

Common Walls:
2+ Common Walls

Levels:
Two

Lot Features:
Patio Home

Additional Information

County:
Orange

Senior Community:
No

Community Features:
Curbs, Gutters, Sidewalks, Street Lights

Other Structures:

Structure Condition:
Turnkey

Direction Faces:
East

Listed by:
S.C. Real Estate Group, Inc. , Jennifer Pillon , 01779470

Co-Listed:

Last
Updated:
12/5/2025 4:56 AM

1232 Devonshire Lane,
La Habra, CA 90631