

















































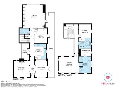
This stunning 3-bedroom, 3-bathroom home offers a luxurious and comfortable living experience. The recently updated kitchen features brand new stainless steel appliances, neutral wood cabinetry, granite slab counters, and a stylish designer tile backsplash. Throughout the downstairs and master bathroom, you'll find elegant travertine and marble floors, complemented by wood shutters, custom drapes, and designer roman and silhouette shades that add a touch of sophistication. The master suite is a true retreat, boasting an oversized walk-in closet with a mirror door, and a lavish master bath with marble, tile, and stonework, along with custom framed designer mirrors and dual vanities. The inviting floor plan includes a convenient downstairs bedroom and bathroom with shower, a formal living room, and a dining room perfect for entertaining. This townhome feels like a single-family home, attached only on one side for maximum privacy. Enjoy a open and spacious side yard and a cozy courtyard view from the kitchen. The professionally hardscaped yard features beautiful slate stone, enhancing the outdoor living space. Conveniently located, you can easily walk to resort-style association pools, parks, sports courts, the elementary school, and the neighborhood shopping center. This meticulously maintained home is a true pride of ownership and a turnkey beauty ready for you to move in and enjoy!