

































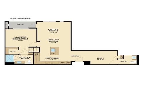
Experience luxury with this pristine top-floor 1-bedroom, 1.5-bath condo with an office den and two (2) parking spots in a secure building in the highly sought-after community of Central Park West! Perfectly positioned on the penthouse floor, this gem overlooks a private, tranquil courtyard that promises serenity. The residence boasts a single-level open floor plan replete with upscale enhancements such as new flooring, white wood shutters, stainless steel appliances, quartz countertops, a kitchen island, and smart home technology throughout. Experience opulence with a spacious master suite, complete with a walk-in closet and an en-suite shower featuring a high-pressure shower head. The unit also has a full patio, a corridor washer/dryer, two private parking spaces conveniently located adjacent to an elevator. Community amenities mimic those of a luxury hotel, featuring a clubhouse, state-of-the-art fitness center, outdoor BBQ, swimming pools, hot spas, sports courts, and parks. The dwelling's central location means ease of access to stunning beaches, premium shopping destinations, exceptional restaurants, and main freeways. Close to Fwy 405, Jamboree. Short drive to UCI, Irvine Spectrum Center, Fashion Island, South Coast Plaza. Don't miss out on this opportunity to live in style and comfort!