









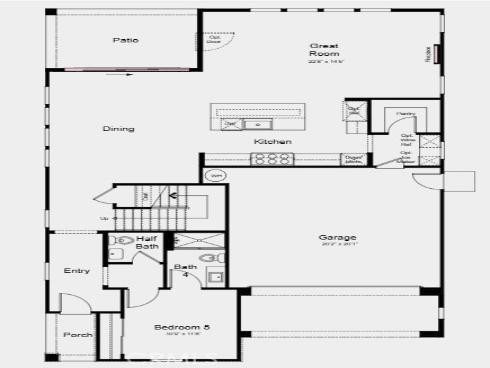
What's Special: No Rear Neighbors | Close to Park | Covered Patio | Loft | Fireplace. New Construction – March Completion! Built by America's Most Trusted Homebuilder. Welcome to the Plan 3 at 205 Briar Moon in Aurora at Luna Park! Function and flow meet effortless style! Step inside to find a private bedroom with en-suite bath and a convenient powder room near the entry. The heart of the home opens to a spacious great room, bright kitchen with island, and dining area that extends to a charming patio—perfect for hosting or unwinding. Upstairs, three bedrooms, two bathrooms, and a cozy loft await, along with the serene primary suite featuring a spa-inspired bath with dual vanities, soaking tub, walk-in shower, and generous closet. Aurora at Luna Park offers a lifestyle of connection within Great Park Neighborhoods, with 9 parks, 17 pools, scenic trails, and The Canopy coming in 2027—an 11-acre destination for dining and boutiques. Plus, Orange County beaches are just a short drive away! Additional Highlights Include: Exterior deck with single french door, stacking sliding glass door at great room, and electric fireplace. MLS#IG25269042