









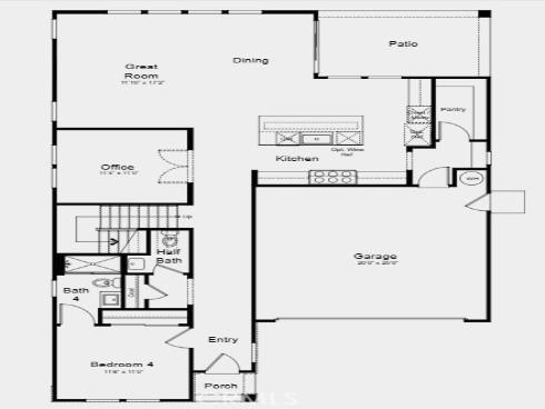
What's Special: Corner Lot | No Rear Neighbors | Dedicated Home Office | Loft. New Construction – March Completion! Built by America's Most Trusted Homebuilder. Welcome to the Plan 2 at 201 Briar Moon in Aurora at Luna Park! Built for your best days! Step inside to find a private bedroom with en-suite bath and a convenient powder room off the foyer. The heart of the home shines with an open great room, dining area, and stylish kitchen with island, all flowing to a lovely patio for easy entertaining. A chic home office adds both beauty and function. Upstairs, discover two bedrooms—one with en-suite bath—plus a shared full bath, laundry room, and a cheerful loft. The serene primary suite is your retreat, featuring a spa-inspired bath with dual vanities, soaking tub, walk-in shower, and spacious closet. Aurora at Luna Park offers a lifestyle of connection within Great Park Neighborhoods, with 9 parks, 17 pools, scenic trails, and The Canopy coming in 2027—an 11-acre destination for dining and boutiques. Orange County beaches are just a short drive away! Additional Highlights Include: Exterior deck with single french door. MLS#IG25268996