















































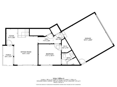
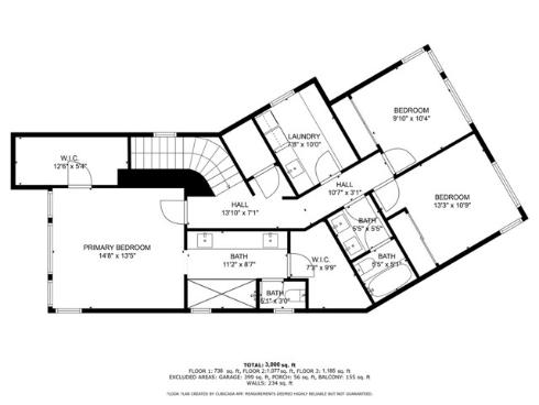
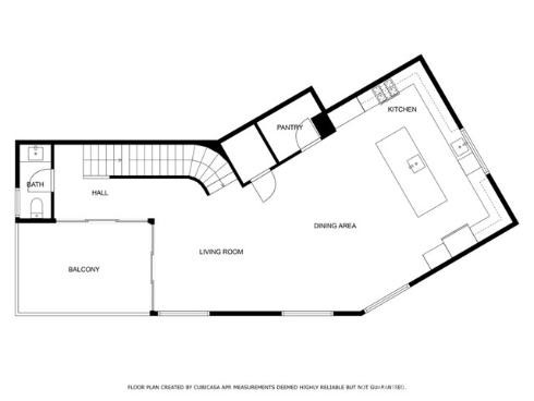
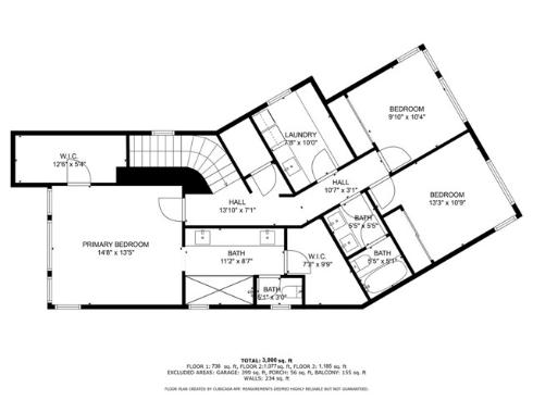
Experience modern luxury living in the heart of Irvine’s sought-after Great Park community of Obsidian at Parasol Park. This contemporary, light-filled home offers 4 spacious bedrooms and 4 bathrooms including one bedroom/bathroom on the first level, A highly desirable downstairs bedroom with a full en-suite bath is ideal for multigenerational living, a private guest retreat, or a home office with added convenience. . Appointed with luxury finishes. convenience. Upstairs, the gourmet kitchen is appointed with a Wolf 6 burner and griddle gas stove, Moen faucets, subzero refrigerator, which seamlessly connects to the expansive great room and a covered balcony, creating effortless indoor-outdoor living. Designer details include upgraded flooring, and a private elevator to enhance both comfort and style. The generous primary suite boasts two walk-in closets, offering ample storage and sophistication. Step outside your door to resort-inspired amenities including multiple sparkling pools, scenic parks, sports courts, dog park and much more and access to award-winning Irvine schools. This is Great Park living at its finest.