
















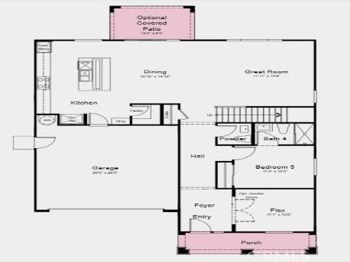
What's Special: Close to Amenities | Large Kitchen Island | 1st Floor Guest Suite. Model Home - Available Now for January Closing! Built by America's Most Trusted Homebuilder. Welcome to the Plan 3 at 186 Carmine in Lily at Great Park! This home invites you in with a charming covered porch and an airy layout designed for connection. The heart of the home features a spacious kitchen with a cozy island and walk-in pantry, opening to the dining and great room for effortless entertaining. A first-floor bedroom with ensuite bath is perfect for guests or extended family, while a versatile flex room with half bath offers space for a home office or gym. Upstairs, the serene primary suite boasts a spa-inspired bath with dual vanities, relaxation tub, and oversized walk-in closet. Three additional bedrooms, a loft, and laundry complete this inviting retreat. Live in the heart of Irvine with access to 17 pools, 9 parks, scenic trails, and a cozy coffee shop. Families enjoy top-rated Irvine schools, while nearby Great Park offers music, art, and seasonal fun. Beaches are just a short drive away, and coming soon, The Canopy will bring 11 acres of dining and shopping to your doorstep. Additional Highlights Include: Covered outdoor living. MLS#IG25275423