




































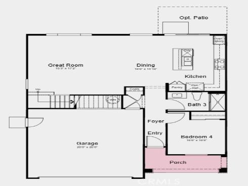
What's Special: Bedroom Down | Covered Outdoor Patio | No Rear Neighbors. New Construction – Ready Now! Built by America's Most Trusted Home Builder. Welcome to the Plan 1 at 110 Pansy in Lily at Great Park! Step through the front porch and into a welcoming foyer that sets the tone for the entire home. Down the hallway, the heart of the home opens up to a bright and airy layout. The gourmet kitchen is thoughtfully designed and overlooks both the dining area and the great room, creating a seamless space for gathering and connection. On the main floor, you’ll find a comfortable secondary bedroom with a full bath—perfect for guests or multi-generational living. Upstairs, three additional bedrooms offer space and flexibility for families of all sizes. The spacious primary bedroom features a generous walk-in closet and a luxurious en-suite bath. A convenient upstairs laundry room adds ease to everyday living. Live in the heart of it all in a vibrant, amenity-rich community served by the highly acclaimed Irvine Unified School District. Shop, dine, and explore Irvine’s favorite local spots, then unwind with access to 17 pools, 9 parks, a cozy coffee shop, and miles of scenic walking and biking trails. Enjoy live music, art events, and seasonal celebrations at the nearby Great Park Amphitheater. And with Orange County’s stunning beaches just a short drive away, sunny escapes are always within reach. Coming in early 2027, The Canopy will introduce 11 acres of dining, shopping, and gathering spaces to the center of the Great Park master plan. Additional Highlights Added: Covered outdoor living, 2 story homes with traditional driveways upfront. Virtually staged photos are for representative purposes only. MLS#IG25225668