

























































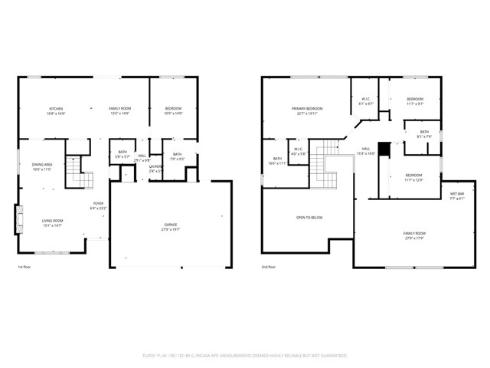
Welcome to 8841 Seaspray Drive, a completely reimagined S&S home in the Goldenwest Estates tract; one of the most highly sought-after neighborhoods in South Huntington Beach. Offering nearly 3,000 sq ft of living space, this fully remodeled, top-to-bottom residence blends modern design, quality craftsmanship, and an unbeatable location. This stunning home features 4 bedrooms plus a spacious bonus/theater room, 3.5 bathrooms, and the rare advantage of two primary suites—including a main-floor bedroom with its own en-suite bath, ideal for guests or multi-generational living. The beautifully renovated kitchen is the heart of the home, complete with a large island, custom cabinetry, quartz countertops, and stainless appliances a Frigidaire Gallery 36-inch gas range—perfect for both everyday living and entertaining. Inside, you’ll find designer finishes throughout, including luxury vinyl flooring, recessed lighting and custom iron stair railing. all-new interior doors. All bathrooms have been upgraded with high-end vanities, designer tile, frameless shower doors, and Kohler fixtures, creating a true spa-like experience. Enjoy peace of mind with extensive system upgrades, including all new PEX plumbing, updated ducting and air registers, a newer HVAC system & water heater, a newly installed 200-amp electrical panel and the convenience of an interior laundry room. Additional enhancements include a new entry door, garage door opener, and an epoxy-finished 3-car garage with ample storage. Step outside to a very private yard designed for entertaining, complete with a sparkling swimming pool and plenty of space for barbecues, gatherings, and relaxing year-round. The home’s curb appeal is elevated by a striking all-stone façade and tasteful, low maintenance landscaping. Ideally located near top-rated schools, parks, shopping, and great restaurants—and just a short 7-minute drive to the sand, Pacific City and iconic Downtown Huntington Beach—this turnkey home truly has it all!