



































































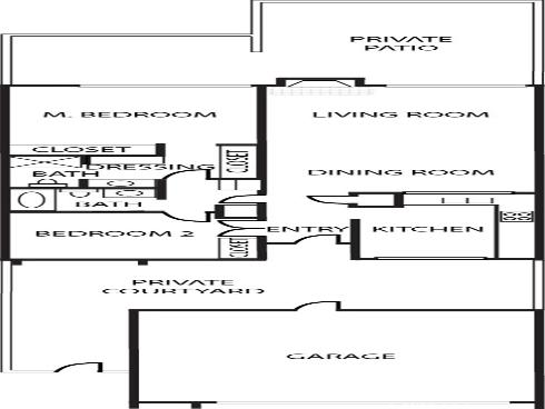
**WELCOME TO the "BEACHWALK" Community-HIDDEN "GEM" IN HUNTINGTON BEACH**RESORT STYLE LIVING! BEACHWALK is ONE of the Most Desirable Areas in HB with all PATIO HOMES and Attached (Only 1 shared wall) Single Family homes! 7 BLOCKS TO THE BEACH!! 12 BLOCKS to DOWNTOWN MAIN St & PACIFIC CITY! This Beautiful, highly upgraded "A" PLAN END UNIT/INTERIOR LOCATION -SINGLE STORY FLOOR PLAN WITH 2 Bedrooms 2 Baths about 1250sf and VAULTED CEILINGS. Beautiful hardwood flooring throughout. Large OPEN Living Room with Vaulted Ceilings, Antique Wood Fireplace and Dual Pane Sliding Glass doors out to your beautiful Large back patio!! Off Living room is your Dining area that is open to the Kitchen which has Upgraded Cabinets, Granite Counters and Stainless Steel Appliances.**2024 NEW ELECTRICAL MAIN AND SUB PANEL!! Very Large PRIMARY Bedroom with Sliding Glass Doors to the Back Patio & En-Suite Upgraded Bathroom. Guest Bedroom has Vaulted Ceilings. Hall Bathroom has Granite Counter Tops, Upgraded Tub/Shower Combo. Home has AC! Laundry Hook-Up’s in Garage. Large 2 car Garage with Bulit-in Cabinets -Plenty of Storage! The 2 patios have drought resisitant landscaping! Enjoy Resort Style Living at BEACHWALK-w/5 Swimming Pools (1 Jr. Olympic with LAP Lanes) Jacuzzi, Men & Women's Sauna, 2 updated Clubhouses, Sand Volleyball, Walking Trails. One Clubhouse has a Pool Table, Library & Large TV! The Main Clubhouse (used for private partiesevents and rented by owner) has FULL Kitchen,Tables/Chairs,Bathrooms. BEACHWALK has numerous walking trails & beautiful trees throughout! Walk/bike to award Winning schools! Close to The Huntington Club (golf, tennis, pickleball and fine dining). Walking Distance to Dog Beach, Seacliff Shopping Center & Views of HB Sunsets! WALK/BIKE TO THE BEACH, DOWNTOWN MAIN ST with many Fine Dining Restaurants, Coffee Shops, retail stores and more! Blocks from Pacific City - upscale restaurants, shops and much more! THIS IS AN AMAZING HOME IN MOVE IN CONDITION!!