































































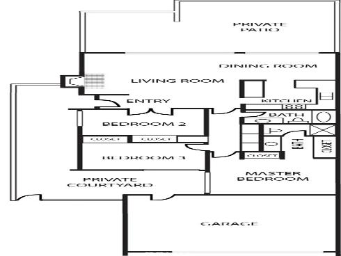
**WELCOME TO the "BEACHWALK" Community-HIDDEN "GEM" IN HUNTINGTON BEACH**RESORT STYLE LIVING! BEACHWALK is ONE of the Most Desirable Areas in HB with all PATIO HOMES and Attached (Only 1 shared wall) Single Family homes! 7 BLOCKS TO THE BEACH!! 12 BLOCKS to DOWNTOWN MAIN St & PACIFIC CITY! This home is a blank canvas (MAKE IT YOUR DREAM HOME) a TRADITIONAL "B" PLAN (MOST DESIRABLE FLOORPLAN) END UNIT/INTERIOR LOCATION -SINGLE STORY FLOOR PLAN WITH 3 Bedrooms 2 Baths and VAULTED CEILINGS. Large OPEN Living Room with Vaulted Ceilings, Fireplace, sliding Glass doors out to your back patio!! Off Living room is your Dining area that is open to the Kitchen. PRIMARY Bedroom with Sliding Glass Doors, En-Suite Bathroom. 2 Guest Bedrooms. Hall Bathroom. Laundry Hook-Up’s in Garage. 2 car Garage with vaulted ceiling! NEWER ELECTRICAL MAIN & SUB PANEL 2025. ROOF/PAINT COVERED IN YOUR HOA. ROOF is a 50 yr roof (about 12 years old). Enjoy Resort Style Living at BEACHWALK-w/5 Swimming Pools (1 Jr. Olympic with LAP Lanes) Jacuzzi, Men & Women's Sauna, 2 updated Clubhouses, Sand Volleyball, Walking Trails. One Clubhouse has a Pool Table, Library & Large TV! The Main Clubhouse (used for private party events and rented by the owner) has a FULL Kitchen, Tables/Chairs, Bathrooms. BEACHWALK has numerous walking trails & beautiful trees throughout! Walk/bike to award Winning schools! Close to The Huntington Club (golf, tennis, pickleball and fine dining). Walking Distance to ICONIC HUNTINGTON BEACH Dog Beach, Seacliff Shopping Center & Views of HB Sunsets! WALK/BIKE TO THE BEACH, DOWNTOWN MAIN ST with many Fine Dining Restaurants, Coffee Shops, retail stores and more! Blocks from Pacific City - upscale restaurants, shops and much more! WELCOME TO SURF CITY USA!