714-914-4996

208 Indianapolis Avenue,
Huntington Beach, CA 92648

$2,300,000

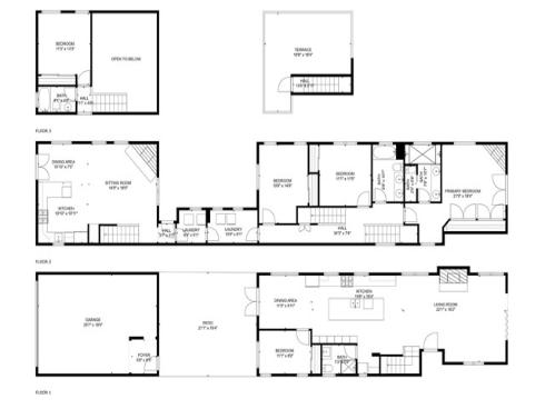
Live Auction! Bidding to start from $2,300,000! Traditional non-distressed property. Cash or finance ok! Seller will entertain offers prior to the Auction date. Magnificent beach-close Nantucket-Style home PLUS a separate two-story apartment—offering over 3,000 square feet of completely reimagined living space. A rare opportunity for homeowners & investors alike! This show-stopping residence is like a brand new home boasting modern luxury finishes, sophisticated architectural details, and exquisite craftsmanship throughout. The main house features 4 bedrooms and 3 bathrooms—including a convenient downstairs bedroom and bathroom—while the private apartment offers 1 bedroom, 1 bathroom, a full kitchen, living room with fireplace, dining area, laundry room, and its own balcony, ideal for rental income or extended family guest quarters. Not one inch of this house has gone untouched with the finest materials and spectacular woodwork. The entire residence boasts beautiful hardwood floors throughout all levels, new windows, Central A/C, extensive wainscoting, crown molding, white shiplap volume ceilings, recessed LED lighting, and beautiful tile work and marble graces all 4 bathrooms creating a refined coastal ambiance. French doors and bi-fold doors seamlessly connect indoor and outdoor living, where you'll find a front brick patio with built-in seating and elevated fire pit, and a spacious back patio perfect for major entertaining. The open-concept layout includes an elegant formal living room with fireplace, multiple dining areas, and a built-in quartz wine bar with wine fridge. The main kitchen is a chef’s dream, featuring an oversized island, quartz countertops, porcelain farmhouse sink, an abundance of solid wood white shaker cabinetry with chic gold hardware, and an Italian 8-burner ILVE range with double ovens, shinny gold accents, and a matching pot-filler. The apartment kitchen is equally elegant with its own ILVE range and custom cabinetry. The luxurious primary suite showcases a cathedral ceiling, brick fireplace, and private balcony, while the third-floor rooftop deck offers sunset views and full entertainment hookups. Two upstairs laundry areas allow complete separation between the main house and the apartment. An epoxy-finished 2-car garage completes this impeccable home. This house is ready for the most discriminating buyer with a desire for a timeless beach house blocks from the beach and vibrant Main Street. All or any furniture can be included!

Basic Information

MLS #:
OC25161134

Price:
$2,300,000

Price
(per sq ft):
$756.00

Address:
208 Indianapolis Avenue ,
Huntington Beach, CA 92648

MLS Area:
15 - West Huntington Beach

Subdivision:
Downtown Area (DOWN)

Property
Type:
Single Family Residence

Days on Market:
128

Status:
Active

Bedrooms:
5

Bathrooms:
4

Full Baths:
4

Size (sq ft):
3,040 sq ft

Lot Size:
3,125 sq ft

Year Built:
2020

Sale Type:
Standard,Auction,Trust

Rooms in Home

Rooms:
Entry, Great Room, Kitchen, Laundry, Living Room, Main Floor Bedroom, Primary Suite, Utility Room

Eating Area:
Area, Breakfast Counter / Bar, Breakfast Nook, In Living Room

Laundry:
Individual Room, Inside, Upper Level, See Remarks

Entry Location:
1

Interior Features

Fireplace:
Guest House, Living Room, Primary Bedroom, Outside

Cooling:
Central Air

Heating:
Central

Floor:
Tile, Wood

Appliances:
6 Burner Stove, Built-In Range, Dishwasher, Double Oven, Disposal, Gas Oven, Gas Range, Microwave, Range Hood, Refrigerator, Tankless Water Heater, Vented Exhaust Fan, Water Line to Refrigerator

Interior Features:
2 Staircases, Balcony, Bar, Built-in Features, Cathedral Ceiling(s), Ceiling Fan(s), Chair Railings, Crown Molding, Furnished, High Ceilings, In-Law Floorplan, Open Floorplan, Pantry, Quartz Counters, Recessed Lighting, Stone Counters, Storage, Wainscoting

Security:

Accessibility:

Garage and Parking

Garage:
Attached

Garage:
2 Spaces

Carport:
0 Spaces

Parking:
Garage, Garage Faces Rear, Garage - Single Door

Home Owners Association

HOA Dues 1:
$0.00 /

HOA Dues 2:
$

HOA Amenities: 

Utilities

Water:
Public

Utilities:
Cable Available,Electricity Connected,Natural Gas Connected,Sewer Connected,Water Connected

School Information

District:
Huntington Beach Union High

Elementary:
SMITH

Middle:
DWYER

High:
HUNBEA

Exterior Features

Pool:
None

Spa:
None

Patio:
Covered, Enclosed, Patio Open, Front Porch, Roof Top

View:
Coastline, Peek-A-Boo

Construction:

Foundation:
Slab

Roof:
Composition

Windows:
Blinds, Casement Windows, Double Pane Windows

Common Walls:
No Common Walls

Levels:
Three Or More

Lot Features:
Front Yard, Rectangular Lot, Level, Park Nearby, Yard

Additional Information

County:
Orange

Senior Community:
No

Community Features:
Biking, Curbs, Park, Sidewalks, Storm Drains, Street Lights, Suburban

Other Structures:

Structure Condition:
Turnkey, Updated/Remodeled

Direction Faces:

Listed by:
Keller Williams Realty , Dianne Rector , 00554645

Co-Listed:

Last
Updated:
12/5/2025 4:55 AM

208 Indianapolis Avenue,
Huntington Beach, CA 92648