

































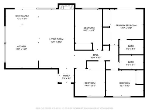
This tract location, charming single-story home offers a modern open design, ideal for comfortable living and entertaining. Located within walking distance to Marine View Middle School, its perfectly positioned close to, walking trails, shopping, dining, and much more. Enjoy the coastal ocean breezes and a relaxed lifestyle, with a beautifully upgraded interior and numerous thoughtful features throughout. The heart of the home is the stylish kitchen, featuring sleek quartz countertops paired with a stunning granite island, providing ample storage on both sides. The kitchen is equipped with stainless steel appliances, a brand-new Amana range, a convenient microwave drawer, hidden wine rack adds a touch of elegance and a lift for small appliance storage keeps everything organized and easily accessible. The adjacent living room offers a gas fireplace with a beautiful marble hearth and mantel, providing the perfect spot to relax. Stylish ceiling fans with lights and recessed lighting throughout add a modern touch, and dual-pane windows throughout the home allow for plenty of natural light and energy efficiency. The primary bedroom features wall-to-wall mirrored closet doors and private backyard slider. The updated bathroom features a convenient step-in shower with glass door, dual shower heads and nickel-finished hardware. While crown molding and 5-inch baseboards give the home a polished and elegant feel. Outside, the meticulously designed backyard retreat is perfect for enjoying the outdoors year-round. A patio cover with built-in overhead lighting sets the stage for year-round coastal outdoor living. The multi-textured yard features artificial turf, natural grass, and a rubber ground covering for a pet run, mature fruit trees, including apple, lemon and peach, and planters filled with fragrant and colorful roses add to the charm. For added security, the home boasts an ornate security gate entry, a decorative glass inlaid front door with an automatic locking mechanism, and Wi-Fi-enabled garage door opener. The direct access, 2 car garage also showcases a brand-new water heater, ample storage with built-in cabinetry, and pull-down access to overhead space. With recent full interior painting, upgraded kitchen and bathrooms, luxury vinyl flooring, recessed lighting, and modern finishes throughout, this home is truly turnkey. This is a must-see property that blends contemporary design, practical amenities, and a fantastic location.