

































































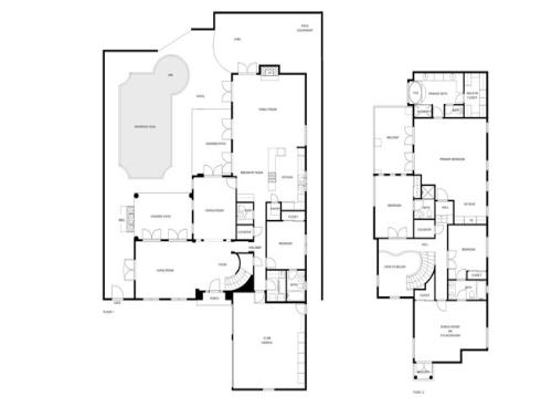
Come join the Trinidad Island Lifestyle in this remarkable off water custom home built in 2001 and inspired by renowned architect Robert A.M. Stern’s classical Mediterranean Villa... "timeless" architecture which will never be "out of style". This remarkable residence includes a “mix” of desirable features which are rarely found together in one home: South Facing Back Yard with Swimming Pool & Spa, Outdoor Fireplace & BBQ, Quiet Cul-de-sac lot adjacent to a greenbelt, 3665 Square Feet of Living Area, 300 Square Feet of Indoor/Outdoor Dining/Fireplace Areas, 5 Bedrooms (or 4 Bedrooms + Bonus Room), 4.5 Bathrooms, (Including a Downstairs Bedroom with Full Bath), Elevator, Formal Living Room, Formal Dining Room, Kitchen Open to Family Room, Inside Laundry, 3 Car Garage, and Beautiful Landscaping. The home also includes a deeded boat dock which has accommodated boats over 40 feet LOA in the past. This home is one of the top 3 off water home locations on Trinidad Island, and arguably top 5 off water homes in Huntington Harbour all things considered. Yes, there is a 3D tour... look for it in whatever system you are using to view the listing. Again, this is no ordinary home: Custom construction, premium location, open floorplan, fantastic neighborhood, ideal orientation for a pool home, quiet c-d-s street, elevator, downstairs bedroom & ensuite bath, pool/spa, 3 car garage, boat dock... Do not miss this opportunity!