

















































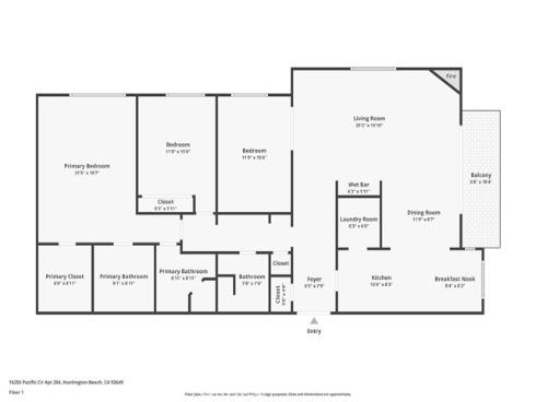
Experience waterfront living with stunning panoramic views in this single-level Bayport condo, offering one of the best views in Huntington Harbour showcasing the extra wide main channel, wetlands, and snow-capped mountains. This home is ideally situated next to the newly renovated Peter's Landing offering a wide variety of waterfront dining and shopping options and just moments from the serene sands of Sunset Beach, both of which offer a plethora of water activities including boat docks available for rent in the Peter's Landing Marina. The home's floor plan includes three bedrooms, with one currently configured as an open den with harbor views and sliding barn doors for guests that can easily be converted back to a third bedroom, along with three bathrooms. The spacious primary suite features dual bathrooms and a large walk-in closet. The kitchen, breakfast nook, dining room and living room all enjoy wide water views, and the living area opens to the recently renovated waterfront balcony. Additional features include a living room fireplace and wet bar, a laundry room with a second refrigerator, and a wine fridge. Located in the gated Bayport community, residents enjoy private building and elevator access and a variety of amenities including a harbor-front clubhouse, heated pool and spa, barbecue area, and pickleball / tennis court. This home is the perfect place to watch the holiday boat parade or simply enjoy your daily cup of coffee while admiring the serenity of waterfront living. You may even spot a dolphin or sea lion swimming by!