

















































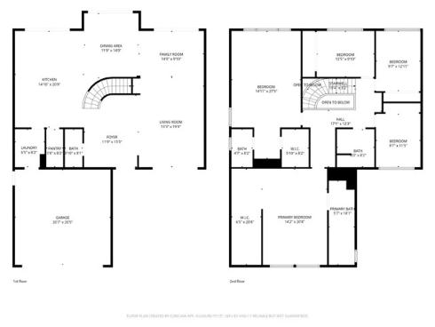
Experience modern coastal living in this beautifully reimagined home, fully gutted and rebuilt between 2023–2024 with premium European-inspired finishes and 265 sq. ft. of newly permitted living space. Located in the highly sought-after Goldenwest Park neighborhood, this residence blends modern luxury with thoughtful craftsmanship throughout. Inside, the home features all-new aluminum-profile double-paned windows, three aluminum bifold doors, and fully upgraded insulation and drywall, creating bright, energy-efficient interiors. The European-style chef’s kitchen, inspired by modern Italian design, serves as the showpiece of the home—highlighted by a massive natural quartzite island, lacquer-finish plywood cabinetry, LED-lit tempered-glass shelving, matching quartzite backsplash, a full ZLINE premium appliance suite, and a walk-in pantry. This space truly brings hotel-level luxury into everyday living. The expanded primary suite offers vaulted ceilings, a spa-inspired bathroom, and an extraordinary 30-foot custom walk-in wardrobe crafted with tea-colored tempered glass and integrated LED lighting—delivering a boutique European dressing experience rarely seen at this level. All bathrooms include floor-to-ceiling tile, quartz vanities, fog-free sensor mirrors, and automatic toilets for a refined, ultra-modern touch. Additional highlights include a natural quartzite staircase with sleek metal railings, tile flooring on the main level, herringbone-pattern luxury vinyl upstairs, two ensuite bedrooms, and a stylish mini bar. The backyard extends your living space with a modern gazebo ideal for outdoor dining, relaxing, and family gatherings. Situated minutes from Bella Terra, Five Points Plaza, parks, restaurants, award-winning schools, and the 405 freeway—with the beach just a short drive away—this fully transformed residence delivers the essence of elevated, European-inspired luxury in one of Huntington Beach’s most desirable neighborhoods.