




























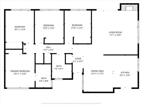
• Welcome to this exceptionally rare, cozy, income-producing single-story property in the heart of Huntington Beach. Nestled in a quiet neighborhood, this well-maintained residence offers stable cash flow, strong upside potential, and a prime Southern California location, just minutes away from Huntington Beach, shopping, dining, and entertainment (approximately 20 minutes from Disneyland and Knott's Berry Farm), with convenient freeway access. • Step inside to a functional layout that includes a generously sized living area, dining space, and well-appointed bedrooms. Existing finishes reflect original character, affording a thoughtful investor the chance to reposition through selective remodeling — kitchen upgrades, refreshed baths, enhanced flooring, and modern touches could drive strong returns. • Homes surrounding the Rushmoor area are consistently well-valued, providing confidence in asset stability and resale potential. Deep appeal to both renter and buyer markets, excellent long-term holding in a desirable coastal market.