





































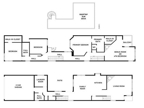
Come join the Downtown Huntington Beach Lifestyle in this fantastic beach home located just a short stroll to the beach, Main Street Village, Pacific City, Equinox, and the Pier. Schools, Parks, Doggie Beach, and shopping are all nearby! The lot for this home is 2 feet wider than most home sites, and it has a desirable floorplan which has two sets of staircases… making it the ideal design to have a separate entrance to the back bedroom. Many homes with this arrangement have configured the back bedroom into a “guest house” for in-laws, college age kids, and visitors! The home is priced very low for the area given its age, living area, and quiet street location… the price reflects the need to update this nearly all original home built in 1989. If you are looking for a house that you can remodel with all of today’s most popular finishes, this is the one. When you enter the home there is a living room with fireplace, then a transition to the kitchen, which is open to the family room with access to the sunny patio. There is a ¾ bath downstairs, which is fantastic for out-of-town guests who would like to shower without negotiating stairs. The lot for this home is deeper than many others in Downtown Huntington Beach allowing for a two car attached garage and large driveway! On the 2nd level, there is a bonus room at the front, primary bedroom with large bathroom & walk-in closet, and two Jack/Jill bedrooms. There is a spiral staircase which goes from the 2nd level hallway up to a large rooftop sundeck… it is the perfect place to enjoy gentle ocean breezes, the 4th of July fireworks, and the Pacific Airshow. This custom home has many features you will not often find… and it is "close, but not too close" to all the attractions that make Downtown Huntington Beach a wonderful place to live. Make sure you come take a look at this one, then update it with your favorite finishes!