

















































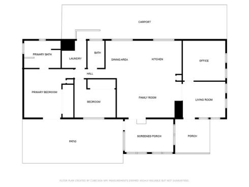
Welcome to 2851 Rolling Hills Dr #255 in Fullerton’s Cedarhill Estates, a resident-owned manufactured/mobile home community where you own the land. This property sits on one of the largest lots in the neighborhood, offering extra space on both sides and in the back with no neighbor directly behind, providing added privacy and outdoor space. The heart of the home is the open floor plan that creates a true great room feel, where the family room, dining area, and kitchen all flow together as one expansive space. It’s ideal for both everyday living and entertaining. The kitchen includes a refrigerator, dishwasher, gas cooktop, built-in oven, range hood, and a bar-top island. Just off the great room is a screened-in porch that leads to a gated patio. While the main focus is the open layout, you also have a separate living room at the entry, offering a quiet space to unwind. The spacious primary bedroom includes mirrored closet doors, built-in shelving, a sliding glass door that opens to the backyard patio, and a large en-suite bathroom with a soaking tub, walk-in shower, and generous vanity space. There’s an additional bedroom, a third room that can serve as an office or extra bedroom, and a remodeled three-quarter guest bathroom with a walk-in shower. The home also includes an interior laundry room with access to the covered carport, as well as central air and heating. Cedarhill Estates offers resort-style living with amenities such as a pool, spa, clubhouse, gym, tennis and pickleball courts, billiards room, and RV storage. The community also hosts regular activities like bingo, dance classes, and bocce ball. Conveniently located near the Brea Mall, major freeways, top-rated schools, shopping, and dining, this home combines comfort, lifestyle, and location in one of Fullerton’s most desirable manufactured home communities.