714-914-4996

1116 Eadington ,
Fullerton, CA 92833

$950,000

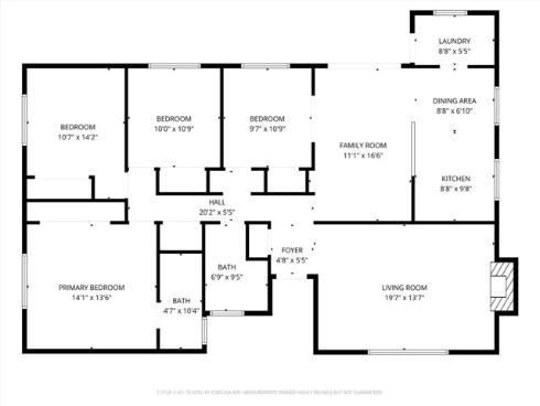
Welcome to this beautifully maintained and thoughtfully remodeled single-story home, nestled in a highly desirable neighborhood known for long-term owners and pride of ownership. This bright and inviting 4-bedroom, 2-bath residence offers 1,666 sq ft of living space with an incredibly efficient floor plan designed for comfort and everyday living. Step inside to find fresh paint inside and out, a remodeled kitchen featuring rich maple cabinetry, abundant storage, expansive quartz countertops, and a layout perfect for cooking and entertaining. Both bathrooms have been stylishly updated, and the home is equipped with central air and heat for year-round comfort. Enjoy the outdoors in your private backyard retreat, complete with a large koi pond, fruit trees, and space for relaxing or gathering with friends and family. Located in the heart of Fullerton, a city celebrated for its excellent schools and flexibility with intra-district transfers, offering families the opportunity to select the right educational path. This is a rare opportunity to own a lovingly cared-for home in a stable, established neighborhood — ready for its next chapter and new memories. Don’t miss it! Homes like this don’t come around often.

Basic Information

MLS #:
PW25265346

Price:
$950,000

Price
(per sq ft):
$570.00

Address:
1116 Eadington ,
Fullerton, CA 92833

MLS Area:
83 - Fullerton

Subdivision:
Other (OTHR)

Property
Type:
Single Family Residence

Days on Market:
12

Status:
Active Under Contract

Bedrooms:
4

Bathrooms:
2

Full Baths:
2

Size (sq ft):
1,666 sq ft

Lot Size:
6,804 sq ft

Year Built:
1966

Sale Type:
Standard

Rooms in Home

Rooms:
All Bedrooms Down, Entry, Kitchen, Laundry, Main Floor Bedroom, Main Floor Primary Bedroom, Primary Bathroom, Primary Bedroom, Office

Eating Area:
Breakfast Nook

Laundry:
Individual Room, Inside

Entry Location:
1

Interior Features

Fireplace:
Living Room

Cooling:
Central Air

Heating:
Central, Fireplace(s)

Floor:
Tile, Wood

Appliances:

Interior Features:
Ceiling Fan(s), Quartz Counters

Security:

Accessibility:
Disability Features, No Interior Steps

Garage and Parking

Garage:
Attached

Garage:
2 Spaces

Carport:
0 Spaces

Parking:
Driveway, Concrete, Garage Faces Side

Home Owners Association

HOA Dues 1:
$0.00 /

HOA Dues 2:
$

HOA Amenities: 

Utilities

Water:
Public

Utilities:
Cable Connected,Electricity Available,Natural Gas Connected,Phone Connected,Sewer Connected

School Information

District:
Fullerton Joint Union High

Elementary:

Middle:

High:

Exterior Features

Pool:
None

Spa:
None

Patio:
Concrete

View:
Pond

Construction:
Stucco, Wood Siding

Foundation:
Slab

Roof:
Composition

Windows:

Common Walls:
No Common Walls

Levels:
One

Lot Features:
Back Yard, Front Yard, Landscaped, Lawn, Level, Sprinkler System, Sprinklers In Front, Sprinklers In Rear, Sprinklers Manual

Additional Information

County:
Orange

Senior Community:
No

Community Features:
Curbs, Sidewalks, Suburban

Other Structures:

Structure Condition:
Turnkey, Updated/Remodeled

Direction Faces:
West

Listed by:
T.N.G. Real Estate Consultants , Jacqueline Orzechowski , 01115908

Co-Listed:

Last
Updated:
12/5/2025 9:38 AM

1116 Eadington ,
Fullerton, CA 92833