






























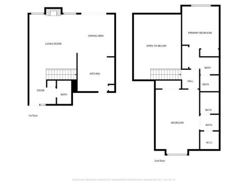
Welcome to 18044 Courreges Court, a beautifully maintained townhome in the highly desirable Shadow Lane community of Fountain Valley. This thoughtfully designed home offers a dual primary suite floor plan with two bedrooms and three bathrooms. The main living area features an open and inviting layout with newer flooring, abundant natural light, vaulted ceilings, and a cozy fireplace. The kitchen has island seating, ample cabinetry, dishwasher, built in microwave, and opens into the dining and living spaces. Upstairs, two spacious primary suites each offer their own private bathrooms and generous closet space. Additional highlights include air conditioning, shutters, new lighting fixtures, and a convenient laundry room. The private backyard patio has beautiful brick and has been recently updated with fresh landscape. The two car garage has cabinetry and direct access to the kitchen. Residents of Shadow Lane enjoy a beautifully maintained community with a sparkling pool and spa, guest parking, and peaceful surroundings. The home is ideally located adjacent to the scenic greenbelt trail and Courreges Park, offering easy access to outdoor recreation, walking paths, and open space. Situated within the highly regarded Fountain Valley school district and close to shopping, dining, and major freeways, this home combines comfort, convenience, and community in one exceptional opportunity.