


















































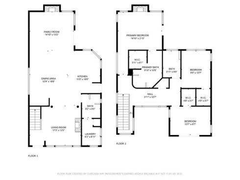
This beautifully renovated Mills Act protected historic home is one of only 22 original Spanish Colonial revival homes built by the Doheny family in the late 1920s. The home offers 3 bedrooms, 3 bathrooms and 3 fireplaces with authentic architectural details including elegant archways & windows. This gem retains its original character without sacrificing the luxury and convenience of a modern-day home. The open-concept kitchen is completely remodeled with quartz counter tops, beautiful custom cabinetry, and stainless steel appliances. The downstairs bathroom accentuates the late 1920’s architecture and connects to a separate laundry room. The primary suite offers a vaulted ceiling, cozy fireplace and large balcony. The luxuriously appointed primary bathroom boasts separate dual head shower, oversized tub, and a spacious walk-in closet. Peek-a-boo ocean view & breeze remind you of just how close the home sits to the Pacific. Relax in the additional 400 square feet of covered outdoor living space not included in the home’s square footage. Available to the new owners are city-ready finished architectural drawings to convert the 400 sq. ft. rear covered structure into an ADU that is water, electric, and sewer ready. Rear electric vehicle charging already wired with 220V access. Located on the ocean side of the freeway in walking distance to Palisades Elementary School, scenic Pines Park, & of course the beach. Because of its historical importance to the city of Dana Point, this unique home is registered under Mills Act and offers it's owners a massive property tax savings annually as yet another added bonus to ownership.