714-914-4996

33695 Blue Lantern ,
Dana Point, CA 92629

$2,750,000

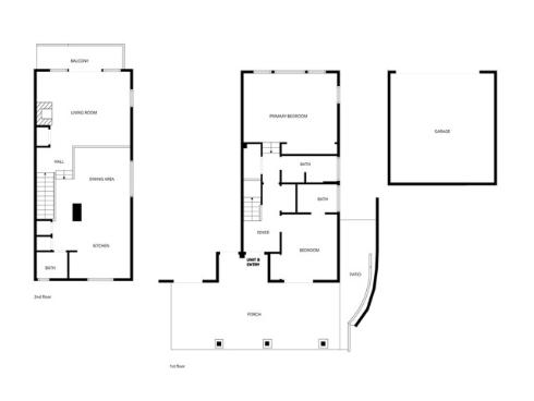
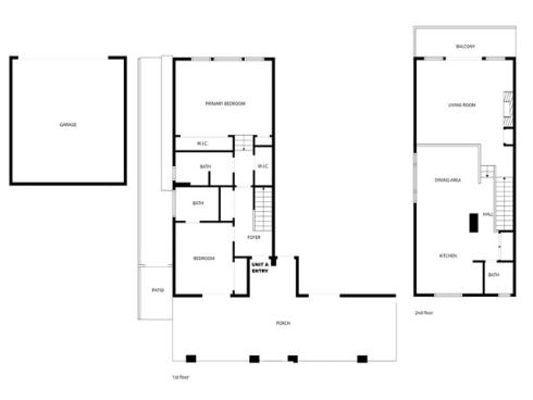
Absolutely Stunning Oceanview Luxury Duplex! 33695 Blue Lantern is a one-of-a-kind property with over 2800 Square Feet of Living Area (each unit is 2 Bedrooms, 2.5 Baths, and has its own private 2 Car Garage). The driveway can hold up to 8 cars, and the enormous back yard features a Zen garden, covered patio, dining area, spa, and spacious BBQ area. The ocean views from the top level are breathtaking, and simply must be seen to be appreciated. In the past, this home has been used for multi-generational living (it had an opening between two units at the top level), but it could also be a “home with income”. The Dana Point Downtown, The Lantern District, Dana Hills High School, Salt Creek and Strands Beach, The Waldorf Astoria Monarch Beach Resort/Spa, Monarch Beach Golf Links, Ritz Carlton, and the Dana Point Harbor are all nearby. View the photographs, floorplan drawing, and walk-through 3D tour… Then come see it, you will not be disappointed!

Basic Information

MLS #:
OC25272276

Price:
$2,750,000

Price
(per sq ft):
$971.00

Address:
33695 Blue Lantern ,
Dana Point, CA 92629

MLS Area:
LT - Lantern Village

Subdivision:
Other (OTHR)

Property
Type:
Single Family Residence

Days on Market:
6

Status:
Active

Bedrooms:
4

Bathrooms:
6

Full Baths:
4

Size (sq ft):
2,832 sq ft

Lot Size:
7,405 sq ft

Year Built:
1977

Sale Type:
Trust

Rooms in Home

Rooms:
Kitchen, Living Room, Main Floor Bedroom, Main Floor Primary Bedroom, Primary Bathroom, Primary Bedroom, Primary Suite, Two Primaries

Eating Area:
Area, Breakfast Counter / Bar

Laundry:
Gas Dryer Hookup, Inside, Washer Hookup

Entry Location:
2

Interior Features

Fireplace:
Living Room, Gas

Cooling:
Central Air

Heating:
Central, Forced Air

Floor:
Carpet, Tile, Wood

Appliances:
Dishwasher, Gas Range, Microwave, Refrigerator, Water Heater

Interior Features:
Beamed Ceilings, Granite Counters, High Ceilings, In-Law Floorplan, Open Floorplan, Stone Counters

Security:
Carbon Monoxide Detector(s), Smoke Detector(s)

Accessibility:
Grab Bars In Bathroom(s)

Garage and Parking

Garage:
Detached

Garage:
4 Spaces

Carport:
0 Spaces

Parking:
Driveway, Garage

Home Owners Association

HOA Dues 1:
$0.00 /

HOA Dues 2:
$

HOA Amenities: 

Utilities

Water:
Public

Utilities:
Cable Connected,Electricity Connected,Natural Gas Connected,Sewer Connected,Water Connected

School Information

District:
Capistrano Unified

Elementary:
RHDAN

Middle:
MARFOR2

High:
DANHIL

Exterior Features

Pool:
None

Spa:
Private, Above Ground, Heated

Patio:
Patio, See Remarks, Slab

View:
City Lights, Coastline, Hills, Ocean, Panoramic, Water, White Water

Construction:
Drywall Walls, Stucco

Foundation:
Slab

Roof:
Shingle

Windows:
Double Pane Windows

Common Walls:
No Common Walls

Levels:
Two

Lot Features:
Back Yard, Gentle Sloping, Landscaped, Sprinklers Drip System, Sprinklers In Rear

Additional Information

County:
Orange

Senior Community:
No

Community Features:
Curbs, Sidewalks, Storm Drains, Street Lights

Other Structures:

Structure Condition:
Turnkey, Updated/Remodeled

Direction Faces:

Listed by:
Coldwell Banker-Campbell Rltrs , Scot Campbell , 00943759

Co-Listed:

Last
Updated:
12/14/2025 10:04 AM

33695 Blue Lantern ,
Dana Point, CA 92629