
















































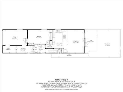
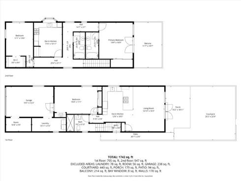
Located in the sought-after coastal community of Capistrano Beach, this versatile 3-bedroom + den, 3-bathroom home offers approximately 1,742 square feet of flexible living space on a desirable street-to-street lot. Currently configured to accommodate two separate living areas, the property presents a unique opportunity for multi-generational living, rental income, or extended guest use. The layout can also be easily reimagined as a traditional single-family residence with 3 bedrooms, 3 bathrooms, and a den. The upper-level features two bedrooms and two bathrooms, including a spacious primary suite with a private deck and ensuite bath. A beautifully updated kitchen showcases modern cabinetry, butcher block countertops, ample storage and high-end appliances with stackable laundry. The secondary bedroom is generously sized with access to a full hallway bathroom. The lower level offers a private living space complete with a remodeled kitchen, full bathroom with a curbless shower and frameless glass enclosure and a generously sized sleeping room with direct garage access. The space is light and bright and includes a private fenced in yard area. Additional highlights include an upgraded electrical panel, whole-house re-pipe with pex, and an attached two-car garage with one bay adapted as a flex space /office and a separate laundry area. The rear alley access, combined with a new vinyl fence, storage shed and roll-up garage door, enhances both functionality and privacy. The property sits on a quiet street directly across from Sunset Park, is within minutes of direct freeway access and also walking distance to Handel's Handmade Ice Cream, Trader Joe's, Sprout's Market and so much more. Welcome home!