
























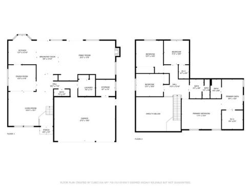
Coastal living in delightful Dana Point! One of the larger home models ON A QUIET INTERIOR STREET in the hidden gem enclave of Stratford at the Pacific with 4 bedrooms, including a large primary suite boasting an oversized bathroom and walk-in closet. Just about every space of this home has been thoughtfully updated over the years, with recent improvements of luxury vinyl plank flooring throughout the expansive and airy open concept main level. The kitchen has stone counters and solid birch wood cabinets. Host gatherings with easy indoor/outdoor flow, numerous conversation areas, and a convenient wet bar for mixing cocktails, or create an exclusive coffee station for your in-house barista. The peaceful backyard features lush greenery providing shade and privacy and there is a charming front porch too. The generous 3 car garage is pre-wired for an EV charger, plus it also has a storage room, which other owners of this same floor plan have converted into a main floor bedroom. What really makes this neighborhood exceptional is the accessibility to nearby Doheny Beach, Dana Point Harbor, and historic downtown San Juan Capistrano via the bicycle and pedestrian path that goes under Pacific Coast Highway with no streets to cross. Fabulous Creekside Park is a short stroll through the serene association greenbelt and features a super fun playground and an area for dogs to play too. Low association dues and no Mello-Roos in a well maintained, vibrant city with iconic surf culture, renowned restaurants, sportfishing, paddleboarding, concerts, festivals, and community activities for all ages. Ocean breezes and beach town lifestyle included!