
























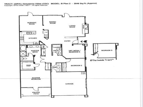
Welcome to 51 Bogey, a beautiful single-level home in the Greystone Villas tract located within walking distance of the renowned Coto de Caza Golf & Racquet Club. Featuring a private gated entrance leading to the front door of this spacious property, you'll love all this home has to offer. Upon entering the foyer, you are greeted by high ceilings and an open-concept living experience showcasing a living room with a fireplace, dining room, and den (or office/3rd bedroom). The kitchen boasts stainless steel appliances including double ovens, granite countertops, an abundance of cabinet space, and a breakfast nook. The expansive backyard overlooks the Coto de Caza Golf & Racquet Club and offers beautiful sunset views. The nicely appointed landscaping and hardscape is easy to maintain and allows for plenty of space to entertain. The spacious Primary Suite offers a great place to unwind, and features its own private patio. The en-suite boasts a double sink vanity, in-ground tub, walk-in shower and walk-in closet. Down the hall is an additional bedroom featuring a ceiling fan, and a secondary bathroom with a shower/tub combo. A laundry room and two-car garage complete this wonderful home. Come experience all that Gated Coto de Caza has to offer including Capistrano Unified award-winning schools, the Golf & Racquet Club, sports parks, hiking, biking & horse trails, equestrian center and so much more!