

























































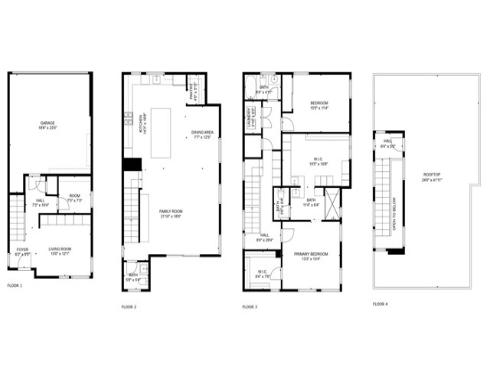
Coastal Luxury Meets Modern Design! Just about a mile from the beach, this stunning high-end condo in the heart of Costa Mesa delivers the ultimate Southern California lifestyle. Surrounded by top-tier dining, boutique shopping, and vibrant nightlife, this residence is a rare blend of location, sophistication, and comfort. Step into a sun-drenched open floor plan featuring soaring ceilings, wide-plank wood flooring, and designer finishes throughout. The chef’s kitchen is the centerpiece, boasting custom cabinetry, quartz countertops, and premium stainless steel appliances. The elegant primary suite offers a spa-inspired bath, dual vanities, and a generous walk-in closet. One of the home’s most exceptional features is the expansive top-floor outdoor living area — approximately 800 sq ft of partially covered space perfect for entertaining, lounging, or enjoying coastal sunsets and ocean breezes. Whether you envision rooftop dining, a garden retreat, or a private outdoor lounge, this space is unmatched in style and flexibility. Complete with secure parking, in-unit laundry, and a low-maintenance, lock-and-leave lifestyle, this condo is coastal Orange County living at its finest. Don’t miss this rare opportunity to own luxury so close to the sand.